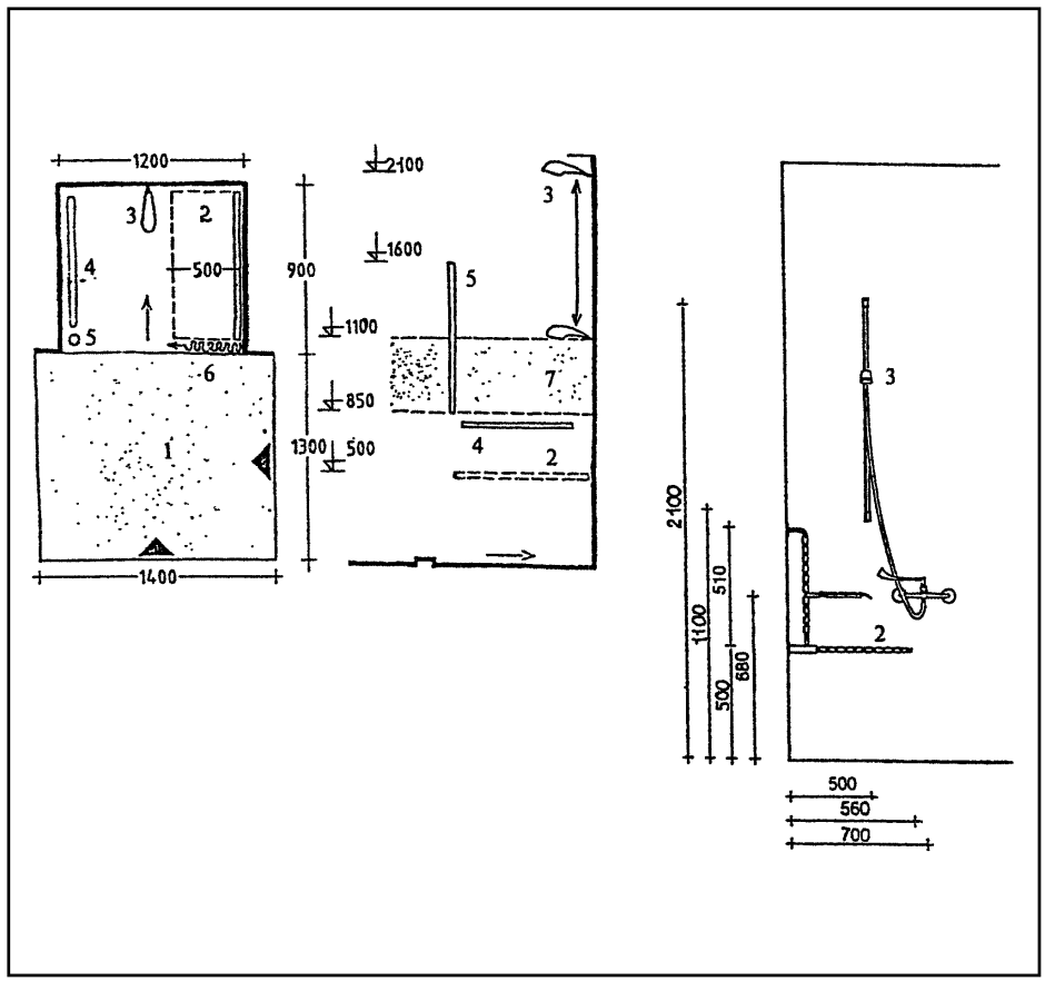
Душевой поддон для мгн
Душевой поддон для инвалидов 900х900

Поддон для душа для инвалидов колясочников
Душевая кабина для инвалидов колясочников

Душевая для инвалидов
Поддон для душа для инвалидов колясочников
Душ для инвалидов колясочников

Душевой поддон для ванны для инвалидов
Сиденье откидное для душа МГН
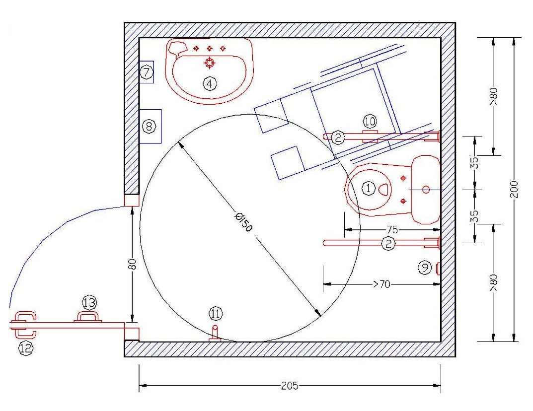
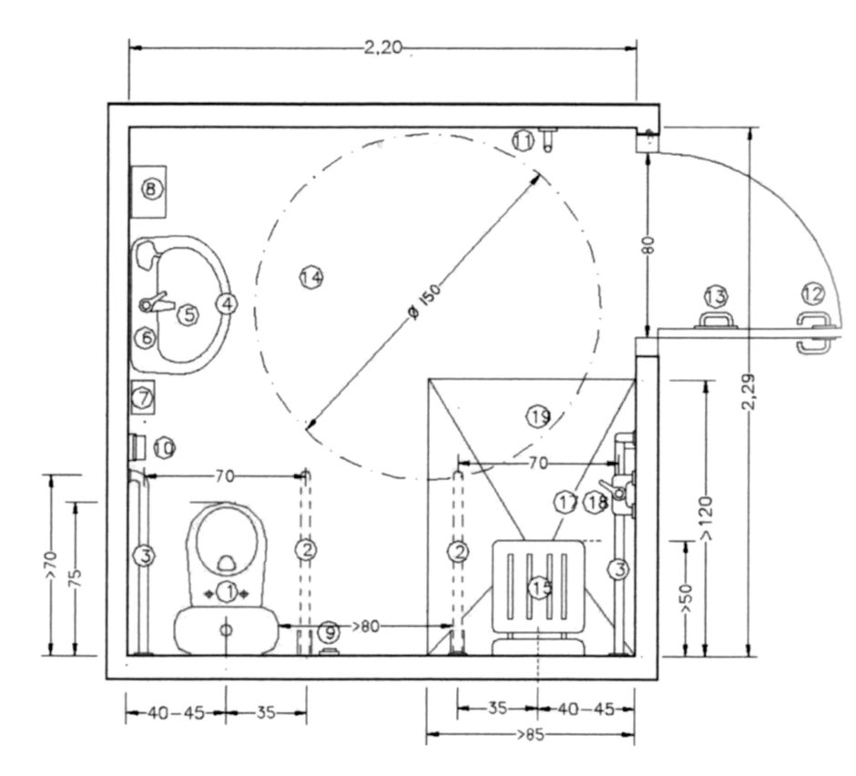
Санузел для МГН доступная среда
Поддон для душа для инвалидов колясочников
Схема санузла для МГН
Ванные комнаты для инвалидов колясочников
Душевые кабины для инвалидов колясочников

Душевые кабины для инвалидов колясочников
Душевая для инвалидов колясочников
Душевые для инвалидов
Поддон Эстет 120х80
Поддон для душа для инвалидов колясочников
Bette поддоны для душа
Оборудование туалетов для маломобильных групп населения 2020
Душевая комната для инвалидов
Душевой поддон Ravak Gigant Pro
Душевая кабина для инвалидов
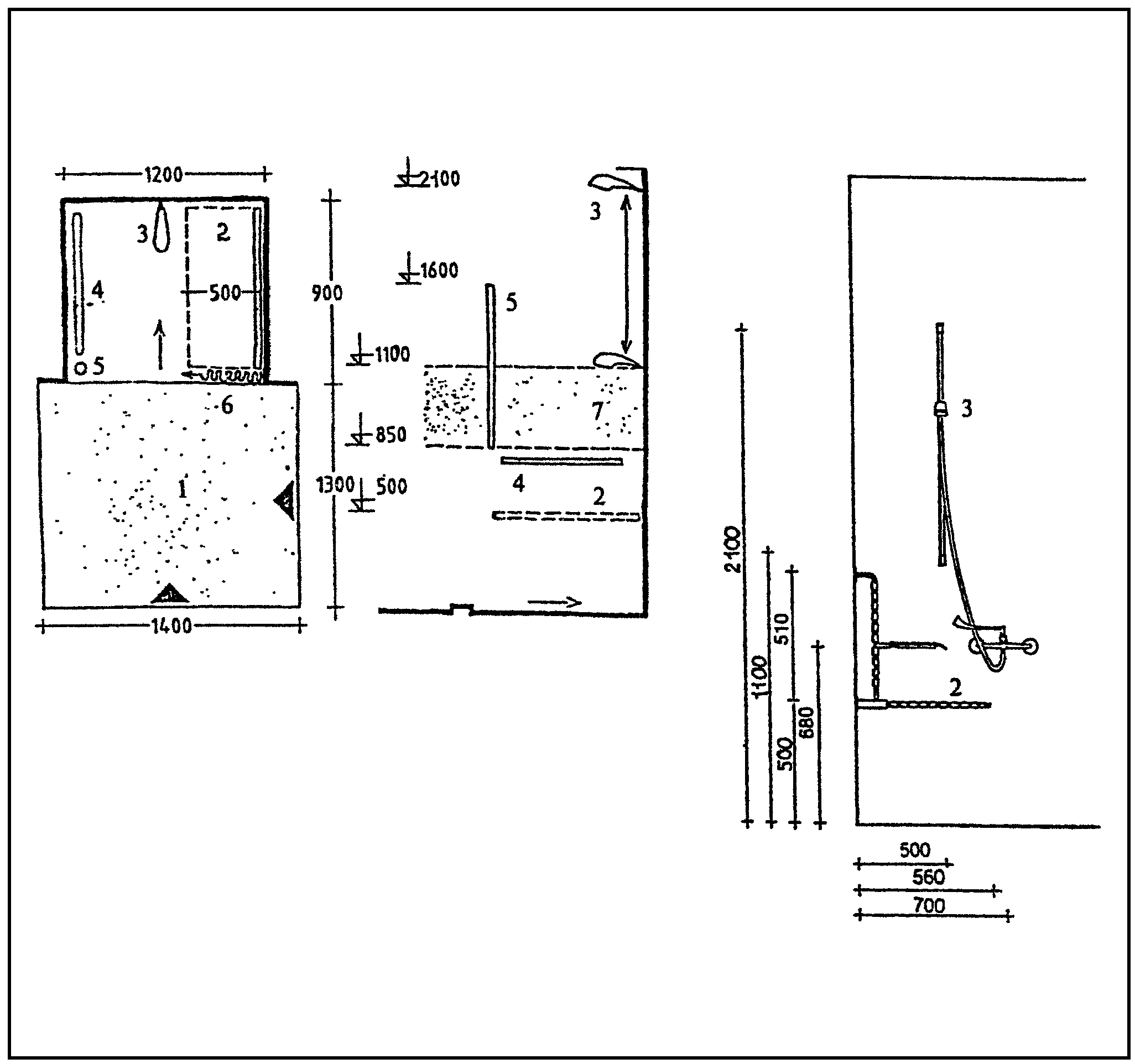
Высота сидения в душевой
Откидное сиденье душевая МГН чертежи
Ширина двери для МГН В санузел
Универсальная кабина для МГН
Сиденье в душевую кабину
Инклюзивная ванная
Санузел с душевой для инвалидов
Душевой поддон Smavit 80x80x16
Высота ванны для инвалида колясочника
Поддон Novellini Olympic Plus
Туалет для МГН 2200х1650
Душевая кабина для МГН план
Kaldewei Conoflat
Туалетная кабинка RFA Revit
Sanplast b CL 80 80
Подиум для поддона душевой кабины
Душевой поддон Безбарьерный для МГН 90х150
Душевой поддон Smavit 80x80x16
Душевой поддон из искусственного камня установка в квартире цена
Душевая кабина своими руками из пластика с поддоном
Кабина МГН 2х1,7
Пластиковый поддон своими руками
Чертеж ванной комнаты с душевой кабиной 2м на2м

Схема санузла для МГН
Санузел с душевой для МГН
Поддон для душа 120х90
Поддон Эстет 120х80
Схема установки линейного трапа
Система МГН для санузлов
Душевая для инвалидов колясочников габариты
Санузел длямаломобильтных групп
Душевые комнаты для инвалидов
Размеры душевой кабинки для маломобильных групп населения
Душевой поддон Радомир 110x90
Душевые кабины для пожилых людей
Поддон Эстет гамма м 90х90
Душевой поддон 85х85 четверть круга
Душевая кабина для инвалидов
Поручни для инвалидов
Поддон Huppe Xerano 90x90 акрил
Душевой поддон с унитазом
Комментируют Душевой поддон для мгн: